Nos coffrets et armoires

La fabrication de nos coffrets et armoires IoT dans nos ateliers

Coffret en matière synthétique pour un Device-V02 qui commande une série de relais
Coffret en matière synthétique pour un Raspberry PI et son alimentation

Pour l’intégration de notre solution, nous réalisons en interne nos coffrets et armoires électromécaniques.
Après les percements, nous adaptons les composants électromécaniques, installons nos devices IoT. Nous terminons par câbler l’ensemble.

Nous proposons, suivant l’application, soit des coffrets en fibre de verre, en matière synthétique, en acier laqué ou en acier inox 304 ou 316.

Fabrication coffret
Préparation d'une armoire en inox 304
Coffret montage
Câblage de l'armoire en inox 304

Quelques étapes de sa réalisation

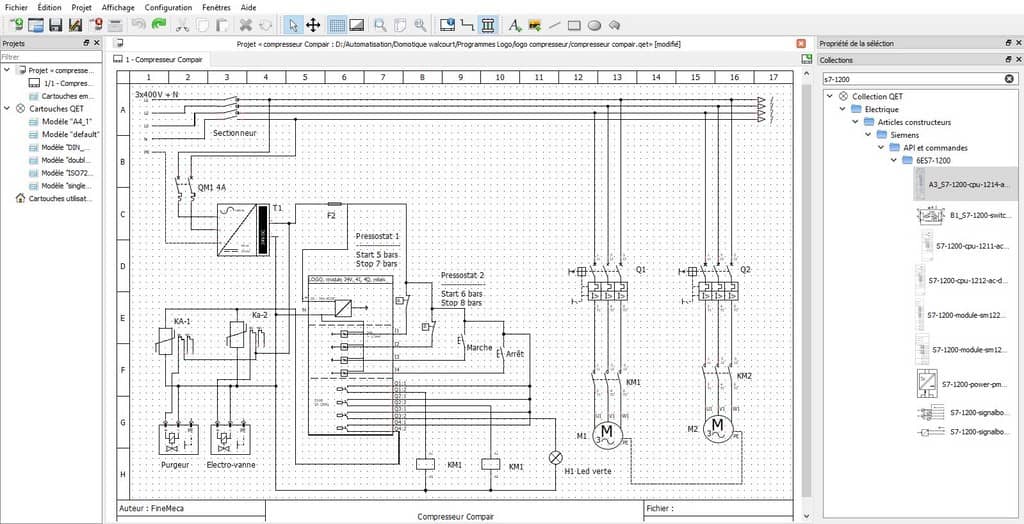
schémas électrique

Un schéma avant tout ! 
Nous l’établissons suivant vos spécifications et votre cahier des charges,
tout en respectant les normes en vigueur

Choix composants coffret

Préparation des différents composants

câblage coffret électrique

Câblage des composants

Perçage boutonnerie

Découpe des ouvertures et perçages pour la boutonnerie

Le marquage des composants avec une imprimante Wago

Etiquette Wago
Imprimante Wago

Finemeca, c'est plus de 20 ans d'expérience pour vous accompagner et vous conseiller!